Lukrative Investition mit 7,6 % Rendite: Voll vermietetes MFH mit Gewerbeeinheit und 2 Wohneinheiten

349.000,00 

Ausstattung: Das hier angebotene Mehrfamilienhaus ist vielseitig nutzbar und bietet eine hervorragende Gelegenheit für Kapitalanleger, die nach einer ertragreichen und vielseitigen Immobilie suchen. Im Erdgeschoss befindet sich eine großzügige Gew…

Beschreibung

# Ausstattung
Das hier angebotene Mehrfamilienhaus ist vielseitig nutzbar und bietet eine hervorragende Gelegenheit für Kapitalanleger, die nach einer ertragreichen und vielseitigen Immobilie suchen. Im Erdgeschoss befindet sich eine großzügige Gewerbeeinheit mit einer Fläche von circa 150 Quadratmetern, die aktuell für eine monatliche Nettokaltmiete von 1.350,00 Euro vermietet ist. Diese stabile Einnahmequelle macht das Objekt besonders attraktiv.

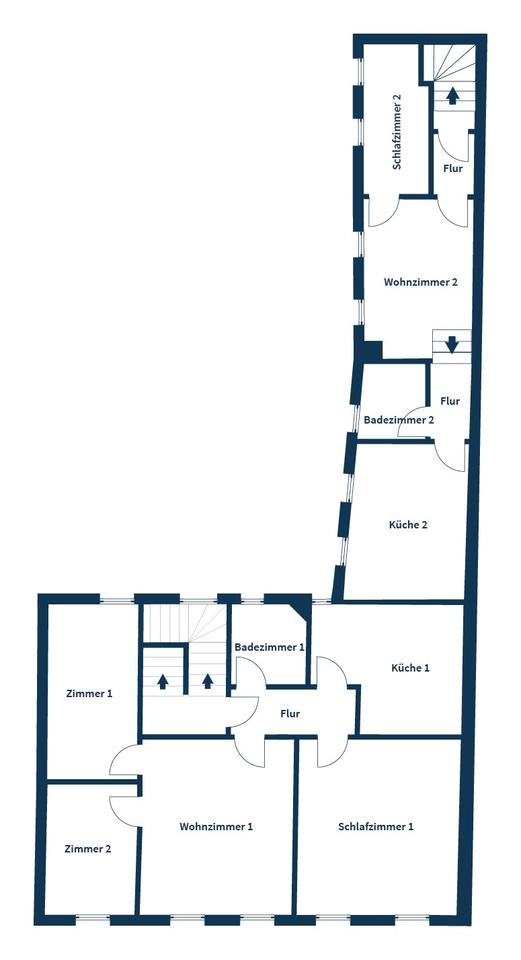
Im ersten Stock befinden sich zwei Wohneinheiten. Die erste Wohnung umfasst circa 84 Quadratmeter und beherbergt vier Zimmer, ein helles Tageslichtbad sowie eine Küche. Die zweite Wohnung ist circa 45 Quadratmeter groß und verfügt über zwei Zimmer, ein Tageslichtbad und eine Küche. Beide Wohneinheiten sind derzeit für eine monatliche Kaltmiete von insgesamt 880,69 Euro vermietet und bieten somit eine zusätzliche Einnahmequelle.

Im zweiten Stockwerk der Immobilie besteht die Möglichkeit zur Erweiterung der Wohnfläche und zur Schaffung zusätzlichen Wohnraums. Dies ermöglicht nicht nur mehr Platz für zukünftige Gestaltungsideen und Wohnbedürfnisse, sondern steigert auch nachhaltig die Attraktivität der Immobilie für potenzielle Käufer oder Mieter und trägt dazu bei, den Gesamtwert der Immobilie zu steigern.

Hinter dem Haus erstreckt sich ein weitläufiger Hinterhof samt Garten. Dieser grüne Außenbereich lädt dazu ein, abseits vom Alltagsstress zu entspannen und die Natur zu genießen, während gleichzeitig eine angenehme Atmosphäre für gemeinsame Aktivitäten geschaffen wird. Das gesamte Haus ist zudem unterkellert und bietet somit zusätzlichen Stauraum und vielseitige Nutzungsmöglichkeiten.

Die beiden Wohneinheiten werden durch Gasetagenheizungen aus den Jahren 2011 und 2020 beheizt, während die Gewerbeeinheit mit einer Gasetagenheizung aus dem Jahr 2020 ausgestattet ist. Der genaue Energieverbrauch bzw. -bedarf ist im Energieausweis detailliert dokumentiert.

Diese Immobilie vereint vielfältige Nutzungsmöglichkeiten mit einer soliden Rendite und bietet mit ihrer vorhandenen Ausbaureserve eine ausgezeichnete Kapitalanlage. Aus Rücksicht auf die Privatsphäre der aktuellen Bewohner werden keine Innenaufnahmen veröffentlicht. Wir laden Sie jedoch herzlich ein, sich von der Immobilie bei einer persönlichen Besichtigung begeistern zu lassen.

# Weitere Angaben
Verfügbar ab: nach Vereinbarung
Objektzustand: sanierungsbedürftig
Qualität der Ausstattung: Standard

Kaufpreis pro m²: 1.250,90 €

Käuferprovision: 3,57% inkl. gesetzl. MwSt.

Grundstücksfläche: ca. 710 m²

# Lagebeschreibung
Die Immobilie befindet sich in Zossen.

Zossen ist eine idyllische Stadt im Bundesland Brandenburg, etwa 30 Kilometer südlich von Berlin gelegen. Sie besticht durch ihre malerische Landschaft und die Nähe zur Hauptstadt, was sie zu einem attraktiven Wohnort für Pendler und Naturliebhaber macht.

Die Stadt ist von weitläufigen Wäldern, Seen und Feldern umgeben, die zahlreiche Möglichkeiten für Freizeitaktivitäten und Erholung bieten. Der nahegelegene Motzener See und der Mellensee sind beliebte Ausflugsziele für Badegäste, Angler und Wassersportler.

Zossen verfügt über eine gut ausgebaute Infrastruktur. Die Anbindung an die Hauptstadt Berlin ist durch die Bundesstraße B96 sowie die Autobahn A10 hervorragend. Zudem bietet der Regionalverkehr eine schnelle und bequeme Verbindung nach Berlin und in andere umliegende Städte.

In der Innenstadt von Zossen finden sich zahlreiche Einkaufsmöglichkeiten, Restaurants und Cafés. Bildungs- und Betreuungsmöglichkeiten sind in Zossen ebenfalls vielfältig vorhanden. Es gibt mehrere Kindergärten, Grundschulen und weiterführende Schulen, die Familien ein umfassendes Bildungsangebot bieten.

Zossen kombiniert die Ruhe und Schönheit der Natur mit der Nähe zur Metropole Berlin und bietet damit eine hohe Lebensqualität für seine Bewohner.

Die nächste Grundschule (Goetheschule Grundschule Zossen) ist etwa 1,6 Kilometer, eine weiterführende Schule (Geschwister-Scholl-Schule Zossen) rund 4,2 Kilometer entfernt. Bis zum nächsten Kindergarten (Kita Oertelufer) sind es ungefähr 450 Meter.

Mit ÖPNV besteht folgende Anbindung:
Bahnhof | Zossen (circa 850 Meter)

# Sonstiges
Unsere Makler beraten Sie gerne persönlich per Telefon oder Videokonferenz. Schicken Sie uns einfach eine Anfrage über ebay Kleinanzeigen und registrieren Sie sich auf unserer Kundenplattform myHomeday. Einen Link zu myHomeday erhalten Sie automatisch nach Ihrer Anfrage per E-Mail. Dort können Sie die Adresse und Dokumente der Immobilie freischalten sowie direkt einen Beratungstermin buchen.

# Energie
Energieausweis: Energiebedarfsausweis
Wesentliche Energieträger: Gas
Endenergiebedarf: 366 kWh/(m²*a)
Energieeffizienzklasse: H
Ausstellungsdatum: 06.05.2024
Gültig bis: 2034-05-06
Baujahr (gemäß Energieausweis): 1900
Heizungsart: Etagenheizung
Wesentliche Energieträger: Gas

Anbieter-Objekt-ID: IWMFPPTB