Beschreibung
# Ausstattung
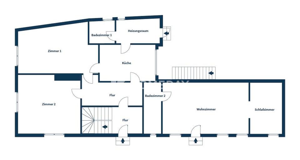
Frisch saniertes Mehrfamilienhaus aus dem Jahr 1960 präsentiert sich als charmantes Ensemble aus zwei Wohngebäuden und einer großzügigen Scheune mit Umnutzungspotenzial. Auf einer Gesamtwohnfläche von rund 369 Quadratmetern verteilen sich insgesamt fünf Wohneinheiten – jede mit eigenem Charakter und in gutem Zustand. Die Gebäude wurden in den vergangenen Jahren kontinuierlich modernisiert: 2023 erfolgte sowohl die Dach- als auch die Fenstersanierung, im Jahr 2024 wurde eine neue Heizungsanlage installiert.
Die Wohneinheiten bieten durchdachte Grundrisse mit hellen Wohn- und Schlafzimmern, gut ausgestatteten Küchen mit Markengeräten und zeitgemäßen Badezimmern mit Fenster, Handtuchwärmer und Regendusche. Besondere Akzente setzen Details wie die indirekte Beleuchtung in der fotografierten Wohnung, die eine warme und einladende Atmosphäre schafft. Eine der Wohneinheiten ist mit einem Balkon ausgestattet. Zusätzlich verfügt das Anwesen über eine Terrasse, die zum Verweilen im Freien einlädt.
Das Anwesen ist an ein modernes Fernwärmesystem angeschlossen, das in Kombination mit einer 34 Quadratmeter großen Photovoltaikanlage sowie einem nachhaltigen Energie-Mix aus Solar, Elektro, Luftwärmepumpen und Hackschnitzeln betrieben wird – ein zukunftsfähiges und kostenbewusstes Heizkonzept.
Die angrenzende Scheune bietet das Potenzial, zwei weitere Wohnungen zu errichten, und eröffnet dem künftigen Eigentümer attraktive Entwicklungsmöglichkeiten. Insgesamt stehen acht Abstellräume sowie ein teilunterkellerter Bereich zur Verfügung.
Das Wichtigste auf einen Blick
• Baujahr 1960, frisch saniert, gepflegter Gesamtzustand
• Zwei Wohngebäude mit insgesamt fünf Wohneinheiten
• Wohnfläche ca. 369 Quadratmeter
• Neue Heizungsanlage (2024), Dach- und Fenstersanierung (2023)
• Nachhaltige Energieversorgung mit Fernwärme, PV-Anlage (34 Quadratmeter) und Luftwärmepumpen
• Zeitgemäße Bäder mit Regendusche und Fenster
• Balkon
• Terrasse
• Scheune mit Potenzial, zwei weitere Wohnungen zu errichten
• Acht Abstellräume, teilunterkellert
• Kaltmiete 3.000,00 Euro
Diese Immobilie kombiniert stabile Mieteinnahmen mit spannenden Erweiterungsmöglichkeiten. Ob als langfristige Kapitalanlage oder zur Entwicklung zusätzlicher Wohnflächen – hier bietet sich eine Gelegenheit, die selten am Markt ist.
# Weitere Angaben
Garagen/Stellplätze: 7
Verfügbar ab: nach Vereinbarung
Objektzustand: gepflegt
Qualität der Ausstattung: Standard
Bodenbelag: Fliesen
Kaufpreis pro m²: 2.300,97 €
Käuferprovision: 5,95% inkl. MwSt. Sofern der Kaufpreis unter 53781,68€ liegt, fällt eine Mindestprovision an von 3200,01€ inkl. MwSt.
Grundstücksfläche: ca. 833 m²
# Lagebeschreibung
Idyllisch eingebettet im weitläufigen, ländlich geprägten Gebiet im Norden des Landkreises Haßberge liegt diese Immobilie in Bundorf – einer traditionsreichen Gemeinde in Unterfranken. Die Region besticht durch ihre geringe Besiedlungsdichte, was besonders Ruhe und viel Raum für Entfaltung ermöglicht.
Bundorf befindet sich in der Planungsregion Main-Rhön, rund 30 Kilometer nordöstlich von Schweinfurt. So verbindet sich eine naturnahe Wohnlage mit einer guten Erreichbarkeit städtischer Angebote. Geprägt wird das Umfeld von der Baunach und dem Rippbach, die mit ihren Uferlandschaften eine abwechslungsreiche Naturkulisse schaffen.
Das Ortsbild zeichnet sich durch charmante historische Akzente aus: Ein barockes Schloss, eine spätbarocke Kirche und gepflegte Dorfplätze verleihen Bundorf einen authentischen Charakter. Umgeben ist die Gemeinde von sanften Hügeln, Feldern und Wäldern, darunter der Bundorfer und der Rottensteiner Forst, die Teil des Naturparks Haßberge sind. Diese Landschaft bietet ideale Möglichkeiten für Wanderungen, Radtouren und erholsame Spaziergänge.
Neben der reizvollen Natur punktet Bundorf mit einer hohen Lebensqualität. Lokale Angebote wie ein Hofladen und ein Café im Ortsteil Schweinshaupten fördern Gemeinschaft und kurze Versorgungswege – perfekte Rahmenbedingungen für ein entspanntes und naturnahes Wohnen.
öffentliche Verkehrsmittel:
Bushaltestelle | Bundorf Theresienstraße (circa 92 Meter)
# Sonstiges
Unsere Makler beraten Sie gerne persönlich per Telefon oder Videokonferenz. Schicken Sie uns einfach eine Anfrage über ebay Kleinanzeigen und registrieren Sie sich auf unserer Kundenplattform myHomeday. Einen Link zu myHomeday erhalten Sie automatisch nach Ihrer Anfrage per E-Mail. Dort können Sie die Adresse und Dokumente der Immobilie freischalten sowie direkt einen Beratungstermin buchen.
# Energie
Energieausweis: Energiebedarfsausweis
Wesentliche Energieträger: Elektro
Endenergiebedarf: 173.9 kWh/(m²*a)
Energieeffizienzklasse: F
Ausstellungsdatum: 14.08.2025
Gültig bis: 2035-08-14
Baujahr (gemäß Energieausweis): 1960
Heizungsart: Fernwärme
Anbieter-Objekt-ID: NARYFAZT
























